Construction de maison contemporaine à Alès : entre design moderne et performance énergétique
Lignes épurées, volumes ouverts, performances modernes : une maison d’aujourd’hui, pensée pour demain.
Un Design moderne
Des lignes épurées et des matériaux innovants pour votre maison individuelle
La maison contemporaine privilégie les lignes géométriques, les volumes ouverts et une circulation fluide entre les espaces.
Elle s’adapte à tous les styles de vie, de la villa de plain-pied à l’habitation à étage avec terrasse panoramique.
Grâce à notre collaboration avec des architectes locaux, nous réalisons des plans personnalisés qui respectent vos envies esthétiques et répondent aux contraintes réglementaires et techniques du secteur.
Les matériaux utilisés (béton, ossature en bois, enduit minéral, bardage, menuiseries en alu ou mixtes) sont choisis pour leur durabilité et leurs performances.
Un habitat performant
Une maison moderne qui capte la lumière… et garde la fraîcheur !
La maison contemporaine permet de tirer pleinement parti de l’orientation et de la lumière naturelle. De larges baies vitrées ouvrent les pièces à vivre sur l’extérieur, créant un lien direct avec la terrasse, le jardin ou la vue environnante.
L’implantation de la maison, la disposition des pièces, les solutions d’isolation ou de ventilation sont étudiées dès la phase de conception pour garantir un confort thermique optimal toute l’année.
Nous intégrons naturellement les exigences de la RE2020 et proposons des systèmes performants : pompe à chaleur, plancher chauffant, VMC à double flux, etc.
Chez Sibel Constructions, nous vous conseillons de A à Z : recherche de terrain si nécessaire, étude de faisabilité, conception des plans avec notre architecte, démarches administratives, suivi de chantier.
Toutes les étapes de la construction sont prises en charge par nos équipes ou nos artisans partenaires, dans le respect du planning et du budget.
Vous bénéficiez d’un interlocuteur unique, de conseils personnalisés et d’une écoute attentive à chaque phase du projet.
L’objectif : construire une maison qui vous ressemble et dont vous serez fier.
UN SUIVI DE A à Z
Un accompagnement complet, du choix du terrain jusqu’à la remise des clés !
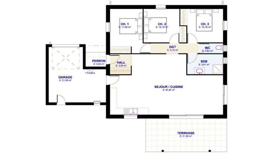
modèles standards
Choisissez le modèle de votre future maison contemporaine !
Des lignes épurées, des espaces lumineux et des agencements intelligents : explorez nos modèles pensés pour conjuguer esthétique, confort et performance.
Démarrez votre projet !















